
INTRODUCTION
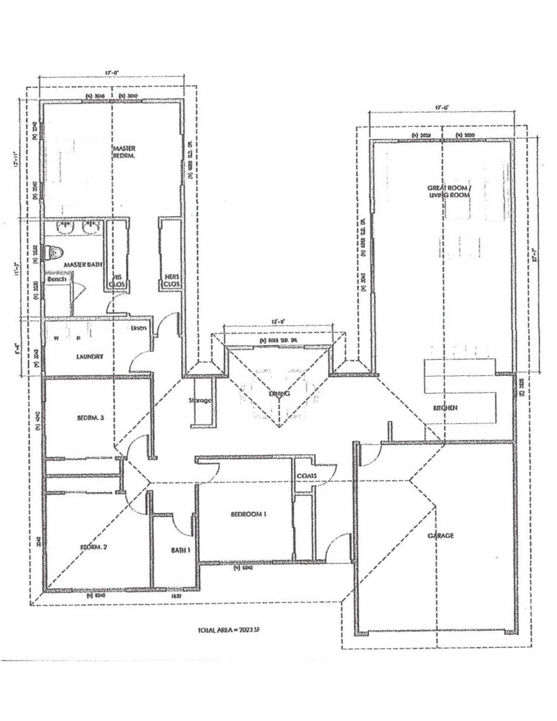
This is a modest rancher in Pleasant Hill that was built in 1950. The home sits in a great location, near schools and shopping. It is currently a three bedroom, one bath with 1042 square feet.
When the project’s renovation is complete, it will be transformed into a four bedroom, two bath home of over 2100 square feet.
You will want to keep a close eye on this one as the flip unfolds.
UPDATE 7/16/2014
The building addition plans for our Pleasant Hill Rancher have been submitted to the City of Pleasant Hill. Full approval of the final permits for the addition are expected very soon. Meanwhile, our crew is busy with the demolition process and removal of existing and demolition debris.
When we have the City-approved plans in hand, the construction will begin.
UPDATE 7/31/2014
The plans have been approved by the city. Construction is underway, with a full demo taking place first. Beau will be doing a video walk-thru of the demo'd site as soon as it's ready.
